Četverosoban stan Ozaljska - B801

  • PRODANO
Oznaka Stan B801
Prodaja/najam Za prodaju
Vrsta Novogradnja
Tip Stan
Sobnost 4-soban
Orijentacija Jugozapad
Etaža 8.kat
Grijanje Plinsko etažno
Energetski razred A+
Godina izgradnje 2027
Faza U izgradnji
Županija Grad Zagreb
Grad Zagreb
Naselje Trešnjevka Nova
Površina 97,28 m2
Ukupna cijena Na upit

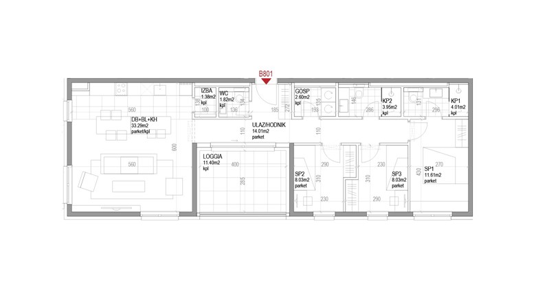
Iskaz neto površine stana

Oznaka  Naziv prostora  Površina  Prodajna površina 
01 Ulaz/Hodnik 14,01 14,01
02 Blag+DB+kuhinja 33,29 33,29
03 Spavaća soba 1 11,61 11,61
04 Spavaća soba 2 8,03 8,03
05 Spavaća soba 3 8,03 8,03
06 Kupaonica 1 4,01 4,01
 07 Kupaonica 2 3,95 3,95
 08 WC 1,82 1,82
09 Gospodarstvo 2,60 2,60
10 Izba 1,38 1,38
  ZATVORENI PROSTOR 88,73 m2 88,73 m2
11 Loggia 11,40 8,55
  OTVORENI PROSTOR 11,40 m2 8,55 m2   
  UKUPNA POVRŠINA 100,13 m2 97,28 m2  

TLOCRT - POZICIJA

Pozicija stana na etaži

Lokacija

vrh stranice