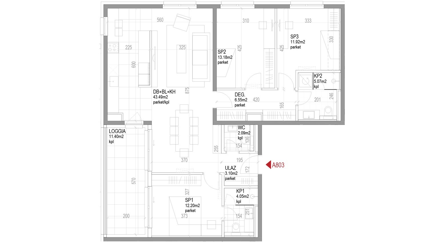
Četverosoban stan Ozaljska - A803

  • PRODANO
Oznaka Stan A803
Prodaja/najam Za prodaju
Vrsta Novogradnja
Tip Stan
Sobnost 4-soban
Orijentacija Sjeverozapad
Etaža 8.kat
Grijanje Plinsko etažno
Energetski razred A+
Godina izgradnje 2027
Faza U izgradnji
Županija Grad Zagreb
Grad Zagreb
Naselje Trešnjevka Nova
Površina 110,20 m2
Ukupna cijena Na upit

Iskaz neto površine stana

Oznaka  Naziv prostora  Površina  Prodajna površina 
01 Ulaz 3,10 3,10
02 Blag+DB+kuhinja 43,49 43,49
03 Spavaća soba 1 12,20 12,20
04 Spavaća soba 2 13,18 13,18
05 Spavaća soba 3 11,92 11,92
06 Kupaonica 1 4,05 4,05
 07 Kupaonica 2 5,07 5,07
 08 WC 2,09 2,09
09 Degažman 6,55 6,55
  ZATVORENI PROSTOR 101,65 m2 101,65 m2
 10 Loggia 11,40 8,55 
  OTVORENI PROSTOR 11,40 m2 8,55 m2    
  UKUPNA POVRŠINA 113,05 m2 110,20m2   

TLOCRT - POZICIJA

Pozicija stana na etaži

Lokacija

vrh stranice