Četverosoban stan Ozaljska - A802

  • PRODANO
Oznaka Stan A802
Prodaja/najam Za prodaju
Vrsta Novogradnja
Tip Stan
Sobnost 4-soban
Orijentacija Zapad
Etaža 8.kat
Grijanje Plinsko etažno
Energetski razred A+
Godina izgradnje 2027
Faza U izgradnji
Županija Grad Zagreb
Grad Zagreb
Naselje Trešnjevka Nova
Površina 84,75 m2
Ukupna cijena Na upit

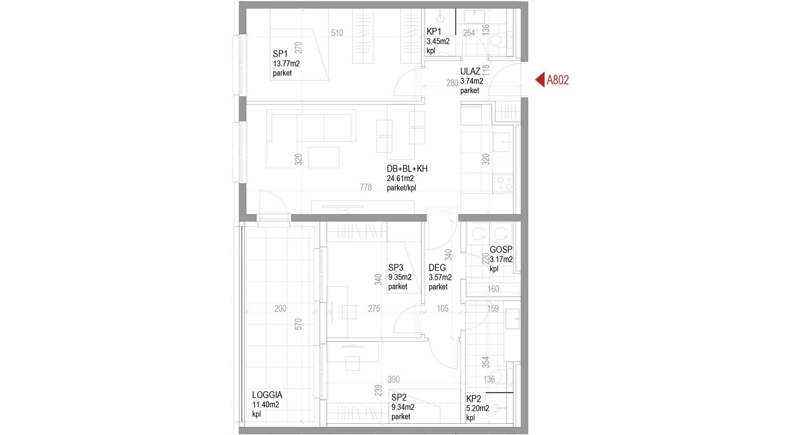
Iskaz neto površine stana

Oznaka  Naziv prostora  Površina  Prodajna površina 
01 Ulaz 3,74 3,74
02 Blag+DB+kuhinja 24,61 24,61
03 Spavaća soba 1 13,77 13,77
04 Spavaća soba 2 9,34 9,34
05 Spavaća soba 3 9,35 9,35
06 Kupaonica 1 3,45 3,45
 07 Kupaonica 2 5,20 5,20
 08 Gospodarstvo 3,17 3,17
09 Degažman 3,57 3,57
  ZATVORENI PROSTOR 76,20 m2 76,20 m2
 10 Loggia 11,40 8,55 
  OTVORENI PROSTOR 11,40 m2 8,55 m2    
  UKUPNA POVRŠINA 87,60 m2 84,75 m2   

TLOCRT - POZICIJA

Pozicija stana na etaži

Lokacija

vrh stranice