Dvosoban stan Ozaljska - C102

  • PRODANO
Oznaka Stan C102
Prodaja/najam Za prodaju
Vrsta Novogradnja
Tip Stan
Sobnost 2-soban
Orijentacija Sjever
Etaža 1.kat
Grijanje Plinsko etažno
Energetski razred A+
Godina izgradnje 2027
Faza U izgradnji
Županija Grad Zagreb
Grad Zagreb
Naselje Trešnjevka Nova
Površina 42,64 m2
Cijena po m² 5.500,00 EUR/m²
Ukupna cijena 234.520,00 EUR

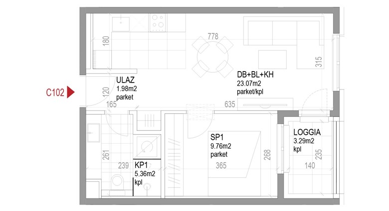
Iskaz neto površine stana

Oznaka  Naziv prostora  Površina  Prodajna površina 
01 Ulaz 1,98 1,98
02 Blag+DB 23,07 23,07
03 Spavaća soba 9,76 9,76
04 Kupaonica 5,36 5,36
  ZATVORENI PROSTOR 40,17 m2 40,17 m2
05  Loggia 3,29 2,47
  OTVORENI PROSTOR 3,29 m2 2,47 m2
  UKUPNA POVRŠINA 43,46 m2 42,64 m2

TLOCRT - POZICIJA

Pozicija stana na etaži
vrh stranice