Dvosoban stan Ozaljska - B107

  • PRODANO
Oznaka Stan B107
Prodaja/najam Za prodaju
Vrsta Novogradnja
Tip Stan
Sobnost 2-soban
Orijentacija Istok
Etaža 1.kat
Grijanje Plinsko etažno
Energetski razred A+
Godina izgradnje 2027
Faza U izgradnji
Županija Grad Zagreb
Grad Zagreb
Naselje Trešnjevka Nova
Površina 46,20 m2
Cijena po m² 5.500,00 EUR/m²
Ukupna cijena 232.100,00 EUR

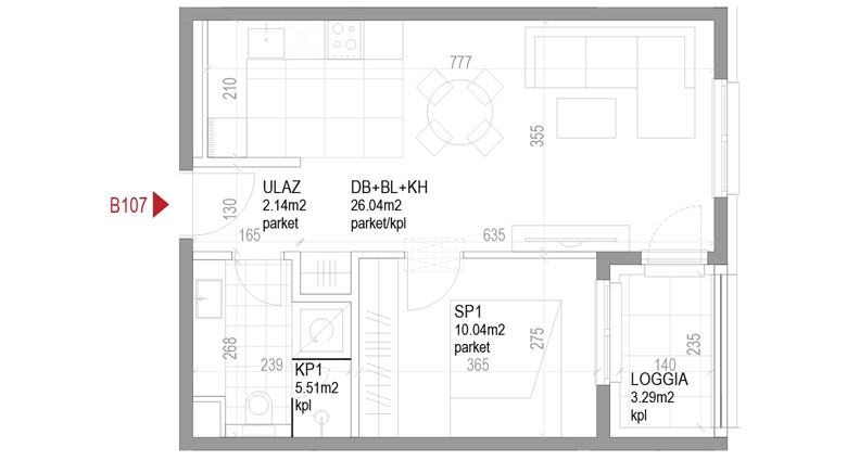
Iskaz neto površine stana

Oznaka  Naziv prostora  Površina  Prodajna površina 
01 Ulaz 2,14 2,14
02 Blag+Db+kuhinja 26,04 26,04
03 Spavaća soba 10,04 10,04
04 Kupaonica 5,51 5,51
  ZATVORENI PROSTOR 43,73 m2 43,73 m2
05  Loggia 3,29 2,47
  OTVORENI PROSTOR 3,29 m2 2,47 m2
  UKUPNA POVRŠINA 47,02 m2 46,20 m2

TLOCRT - POZICIJA

Pozicija stana na etaži

Lokacija

vrh stranice