Dvosoban stan Ozaljska - B104

  • PRODANO
Oznaka Stan B104
Prodaja/najam Za prodaju
Vrsta Novogradnja
Tip Stan
Sobnost 2-soban
Orijentacija Zapad
Etaža 1.kat
Grijanje Plinsko etažno
Energetski razred A+
Godina izgradnje 2027
Faza U izgradnji
Županija Grad Zagreb
Grad Zagreb
Naselje Trešnjevka Nova
Površina 57,44 m2
Cijena po m² 5.500,00 EUR/m²
Ukupna cijena 315.920,00 EUR

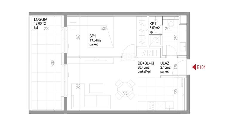
Iskaz neto površine stana

Oznaka  Naziv prostora  Površina  Prodajna površina 
01 Ulaz 2,10 2,10
02 Blag+Db+kuhinja 26,46 26,46
03 Spavaća soba 13,84 13,84
04 Kupaonica 5,59 5,59
  ZATVORENI PROSTOR 47,99 m2 47,99 m2
05  Loggia 12,60 9,45
  OTVORENI PROSTOR 12,60 m2 9,45 m2
  UKUPNA POVRŠINA 60,59 m2 57,44 m2

TLOCRT - POZICIJA

Pozicija stana na etaži

Lokacija

vrh stranice