Dvosoban stan Ozaljska - C506

  • RASPOLOŽIVO
Oznaka Stan C506
Prodaja/najam Za prodaju
Vrsta Novogradnja
Tip Stan
Sobnost 2-soban
Orijentacija Jug
Etaža 5.kat
Grijanje Plinsko etažno
Energetski razred A+
Godina izgradnje 2027
Faza U izgradnji
Županija Grad Zagreb
Grad Zagreb
Naselje Trešnjevka Nova
Površina 53,68 m2
Cijena po m² 5.900,00 EUR/m²
Ukupna cijena 316.712,00 EUR

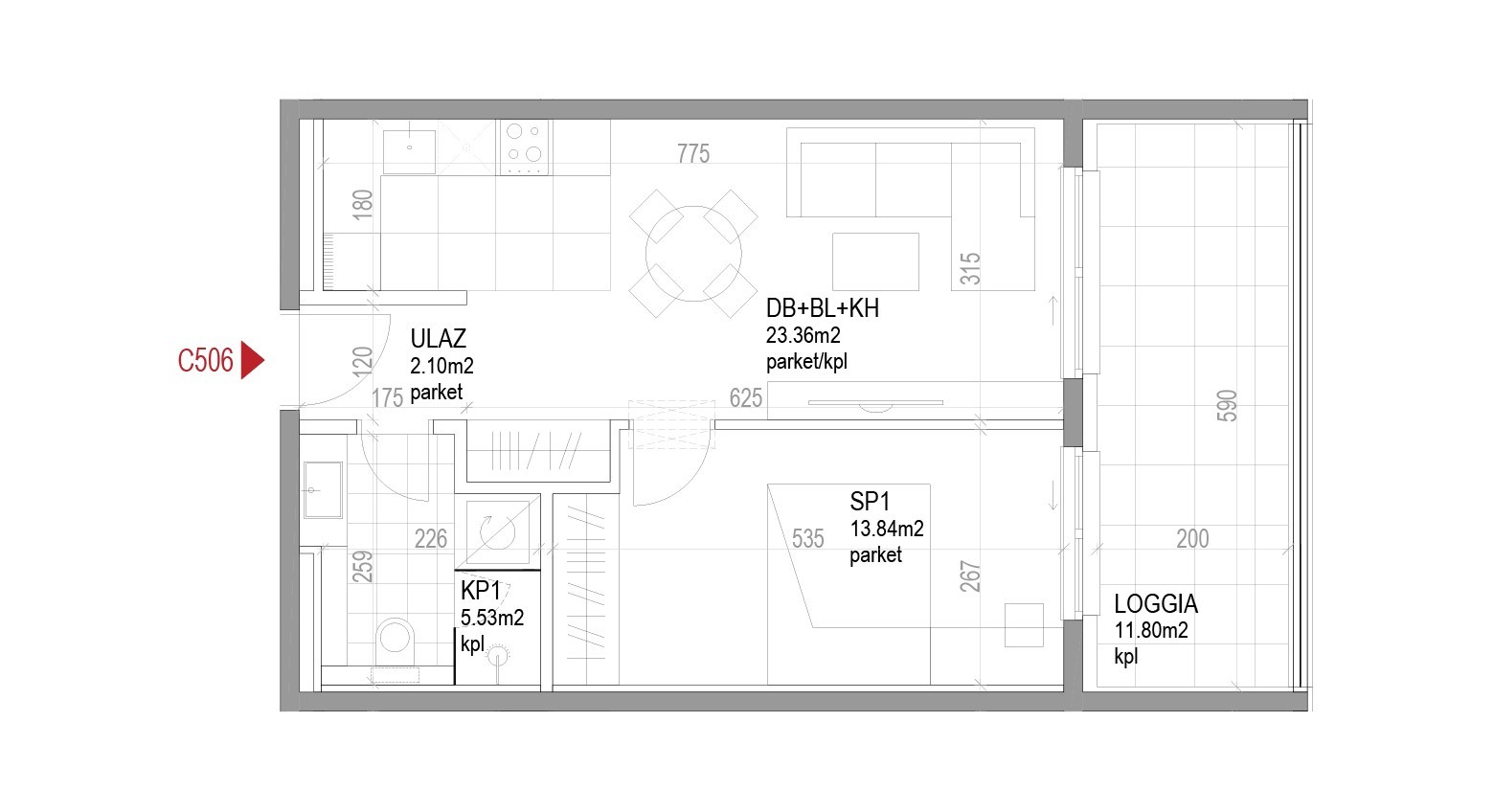
Iskaz neto površine stana

Oznaka  Naziv prostora  Površina  Prodajna površina 
01 Ulaz 2,10 2,10
02 Blag+Db+kuhinja 23,36 23,36
03 Spavaća soba 13,84 13,84
04 Kupaonica 5,53 5,53
  ZATVORENI PROSTOR 44,83 m2 44,83 m2
05  Loggia 11,80 8,85
  OTVORENI PROSTOR 11,80 m2 8,85 m2
  UKUPNA POVRŠINA 56,63 m2 53,68 m2

TLOCRT - POZICIJA

Pozicija stana na etaži

Lokacija

vrh stranice