Dvosoban stan Ozaljska - A101

  • PRODANO
Oznaka Stan A101
Prodaja/najam Za prodaju
Vrsta Novogradnja
Tip Stan
Sobnost 2-soban
Orijentacija Istok
Etaža 1.kat
Grijanje Plinsko etažno
Energetski razred A+
Godina izgradnje 2027
Faza U izgradnji
Županija Grad Zagreb
Grad Zagreb
Naselje Trešnjevka Nova
Površina 42,64 m2
Cijena po m² 5.500,00 EUR/m²
Ukupna cijena 234.520,00 EUR

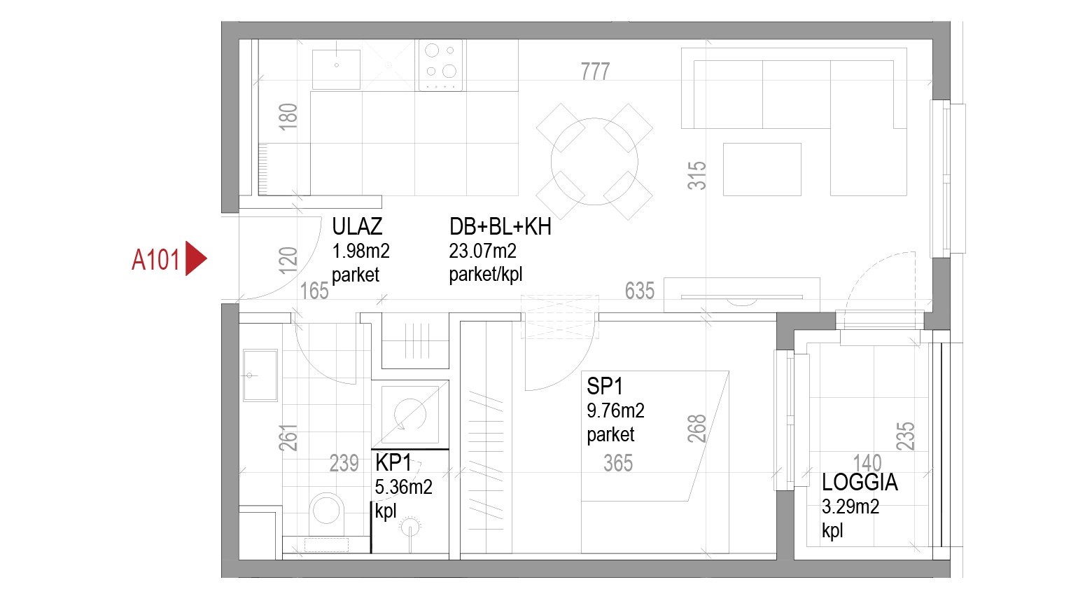
Iskaz neto površine stana

Oznaka  Naziv prostora  Površina  Prodajna površina 
01 Ulaz 1,98 1,98
02 Blag+DB 23,07 23,07
03 Spavaća soba 9,76 9,76
04 Kupaonica 5,36 5,36
  ZATVORENI PROSTOR 40,17 m2 40,17 m2
05  Loggia 3,29 2,47
  OTVORENI PROSTOR 3,29 m2 2,47 m2
  UKUPNA POVRŠINA 43,46 m2 42,64 m2

TLOCRT - POZICIJA

Pozicija stana na etaži

Lokacija

  • Dječji vrtić

    U krugu 150-500m nalazi se nekoliko dječjih vrtića.
  • Osnovna škola

    U krugu 150-500m nalazi se nekoliko osnovnih škola.
  • Dom zdravlja

    U blizini se nalaze nekoliko domova zdravlja.
  • Javni prijevoz

    Blizina javnog gradskog prijevoza (tramvaj i autobus)
  • Supermarket

    U blizini se nalazi nekoliko supermarketa (Konzum, Lidl, Špar..)
vrh stranice