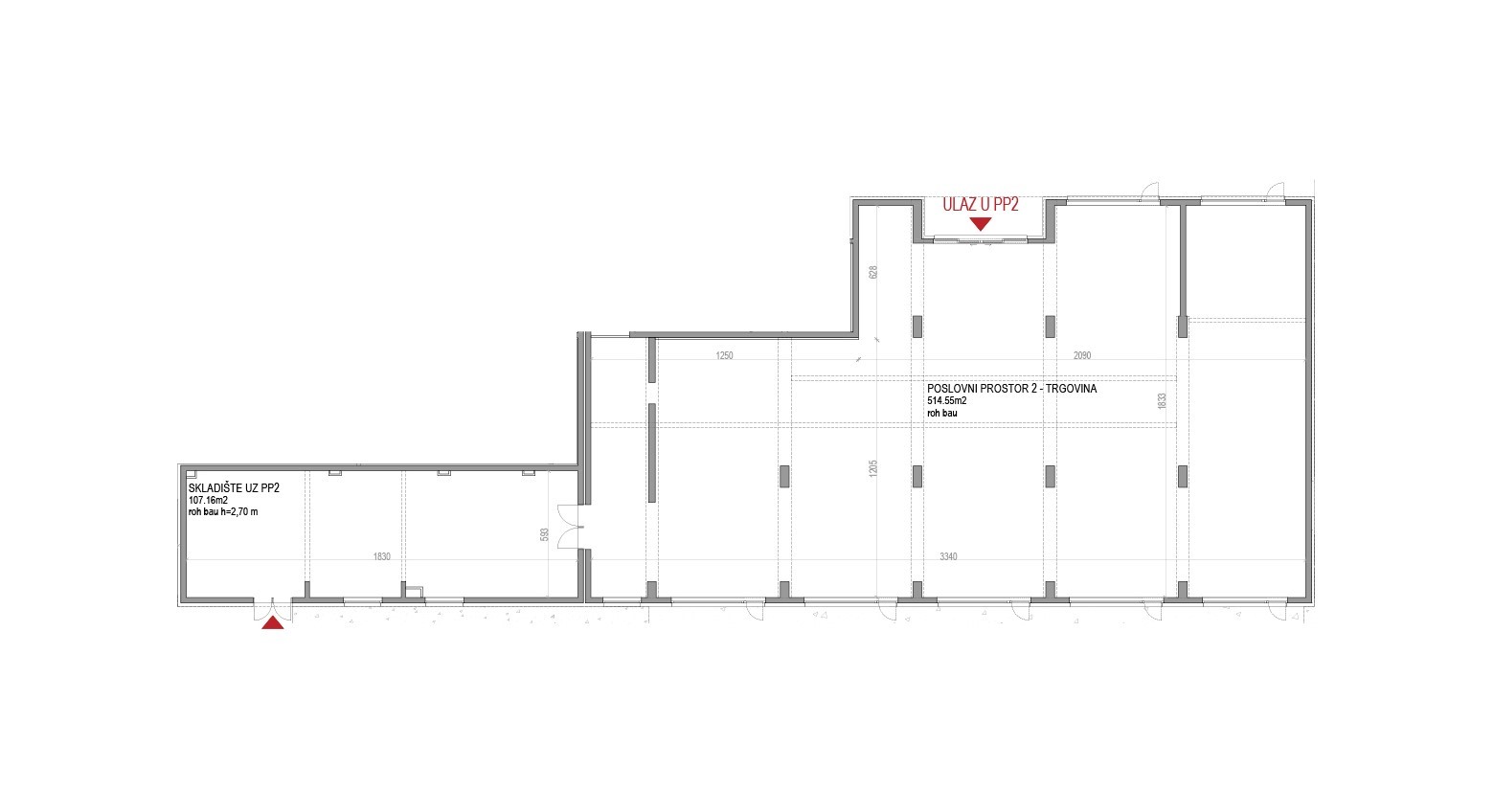
Poslovni prostor 2 - Trgovina

  • RASPOLOŽIVO
Oznaka PP2
Prodaja/najam Za najam
Vrsta Novogradnja
Tip Poslovni prostor
Orijentacija Sjever
Etaža Prizemlje
Grijanje Plinsko etažno
Energetski razred A+
Godina izgradnje 2027
Faza U izgradnji
Županija Grad Zagreb
Grad Zagreb
Naselje Trešnjevka Nova
Površina 621,71 m2
Ukupna cijena Na upit

Iskaz neto površine stana

Oznaka Naziv Površina Koeficijent Prodajna površina STATUS
PP 2
Trgovina 514,55 1,00 514,55 ZA NAJAM
  Skladište 107,16   107,16  
  Ukupno 621.71 m2   621.71 m2  

TLOCRT - POZICIJA

Pozicija stana na etaži

Lokacija

vrh stranice