Trosoban stan Ozaljska - C404

  • RASPOLOŽIVO
Oznaka Stan C404
Prodaja/najam Za prodaju
Vrsta Novogradnja
Tip Stan
Sobnost 3-soban
Orijentacija Jugoistok
Etaža 4.kat
Grijanje Plinsko etažno
Energetski razred A+
Godina izgradnje 2027
Faza U izgradnji
Županija Grad Zagreb
Grad Zagreb
Naselje Trešnjevka Nova
Površina 76,33 m2
Cijena po m² 5.800,00 EUR/m²
Ukupna cijena 442.714,00 EUR

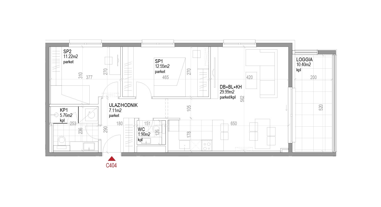
Iskaz neto površine stana

Oznaka  Naziv prostora  Površina  Prodajna površina 
01 Ulaz/Hodnik 7,11 7,11
02 Blag+DB+kuhinja 29,99 29,99
03 Spavaća soba 1 12,55 12,55
04 Spavaća soba 2 11,22 11,22
05 Kupaonica 5,76 5,76
06 WC 1,90 1,90
  ZATVORENI PROSTOR 68,53 m2 68,53 m2 
 07 Loggia 10,40 7,80
  OTVORENI PROSTOR 10,40 m2 7,80 m2
  UKUPNA POVRŠINA 78,93 m2 76,33 m2  

TLOCRT - POZICIJA

Pozicija stana na etaži

Lokacija

vrh stranice