Trosoban stan Ozaljska - A705

  • RASPOLOŽIVO
Oznaka Stan A705
Prodaja/najam Za prodaju
Vrsta Novogradnja
Tip Stan
Sobnost 3-soban
Orijentacija Sjeverozapad
Etaža 7.kat
Grijanje Plinsko etažno
Energetski razred A+
Godina izgradnje 2027
Faza U izgradnji
Županija Grad Zagreb
Grad Zagreb
Naselje Trešnjevka Nova
Površina 75,25 m2
Cijena po m² 6.100,00 EUR/m²
Ukupna cijena 459.025,00 EUR

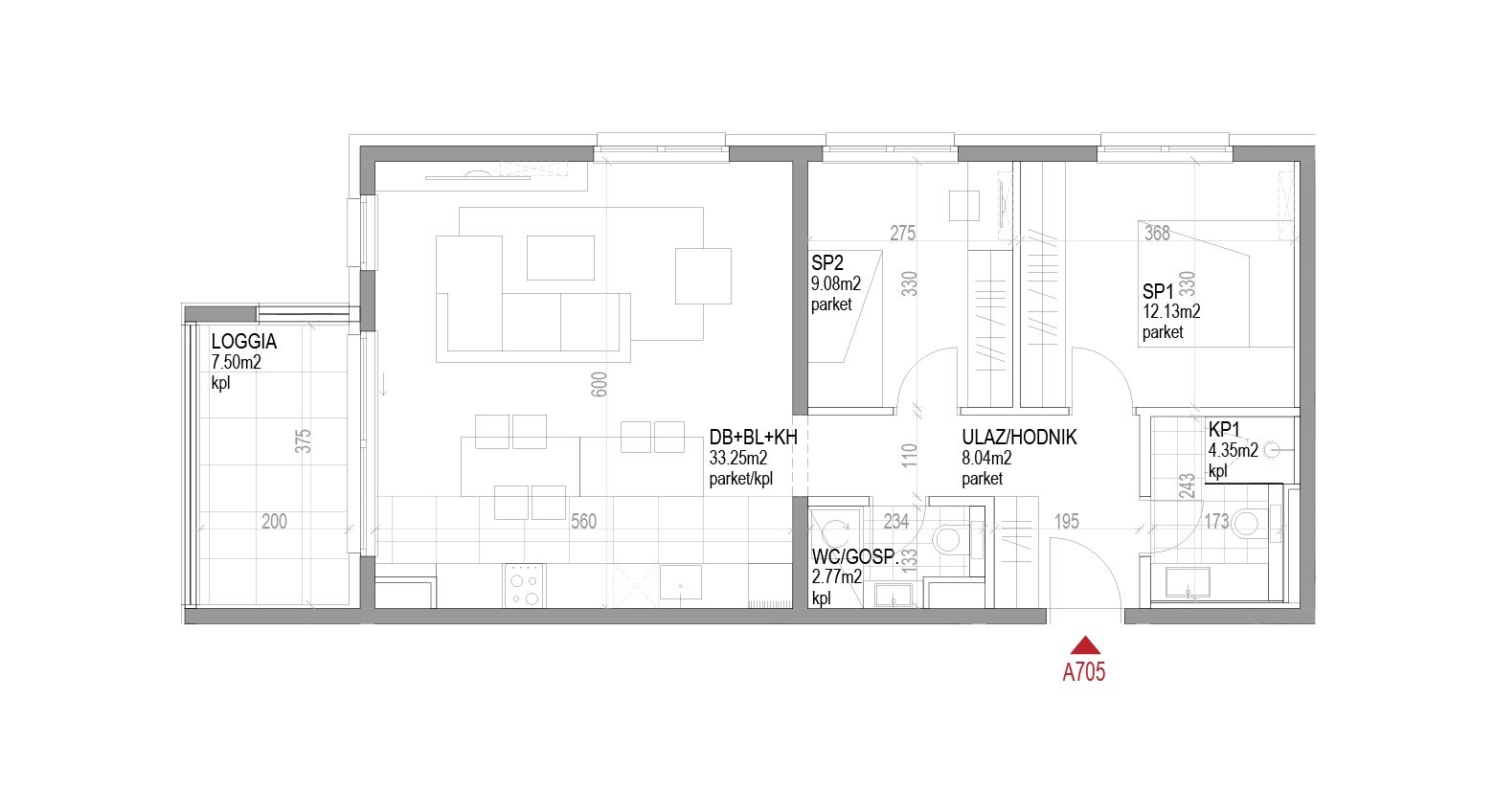
Iskaz neto površine stana

Oznaka  Naziv prostora  Površina  Prodajna površina 
01 Ulaz 8,04 8,04
02 Blag+DB+kuhinja 33,25 33,25
03 Spavaća soba 1 12,13 12,13
04 Spavaća soba 2 9,08 9,08
05 Kupaonica 4,35 4,35
06 WC/gospodarstvo 2,77 2,77
  ZATVORENI PROSTOR 69,62 m2 69,62 m2 
 07 Loggia 7,50 5,63
  OTVORENI PROSTOR 7,50 m2 5,63 m2
  UKUPNA POVRŠINA 77,12 m2 75,25 m2  

TLOCRT - POZICIJA

Pozicija stana na etaži

Lokacija

vrh stranice