Trosoban stan Ozaljska - C603

  • RASPOLOŽIVO
Oznaka Stan C603
Prodaja/najam Za prodaju
Vrsta Novogradnja
Tip Stan
Sobnost 3-soban
Orijentacija Sjeveroistok
Etaža 6.kat
Grijanje Plinsko etažno
Energetski razred A+
Godina izgradnje 2027
Faza U izgradnji
Županija Grad Zagreb
Grad Zagreb
Naselje Trešnjevka Nova
Površina 71,42 m2
Cijena po m² 6.000,00 EUR/m²
Ukupna cijena 428.520,00 EUR

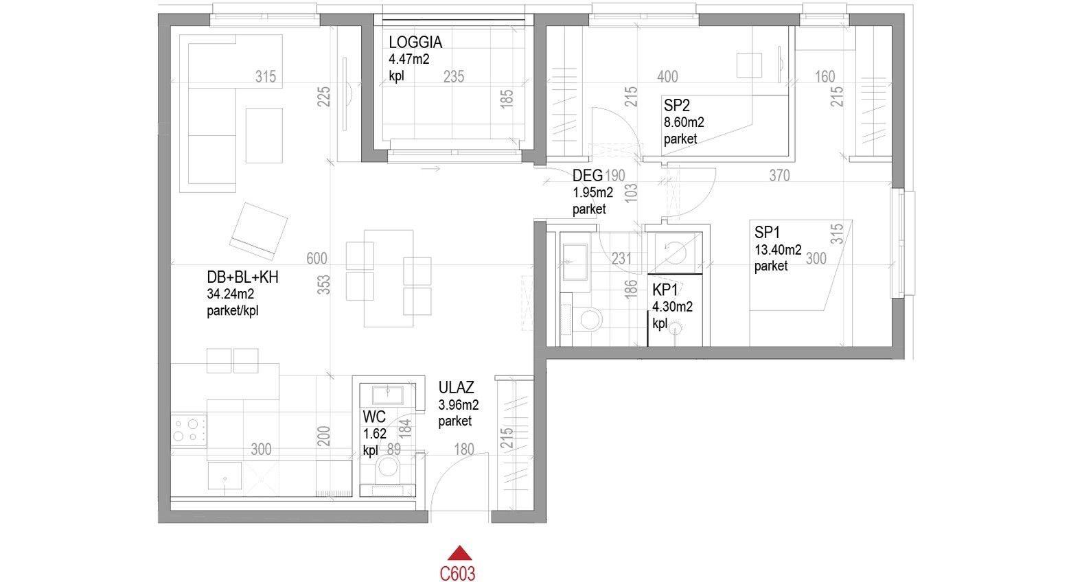
Iskaz neto površine stana

Oznaka  Naziv prostora  Površina  Prodajna površina 
01 Ulaz 3,96 3,96
02 Blag+DB+kuhinja 34,24 34,24
03 Spavaća soba 1 13,40 13,40
04 Spavaća soba 2 8,60 8,60
05 Kupaonica 4,30 4,30
06 WC 1,62 1,62
 07 Degažman 1,95 1,95
  ZATVORENI PROSTOR 68,07 m2 68,07 m2
 08 Loggia 4,47 3,35
  OTVORENI PROSTOR 4,47 m2 3,35 m2 
  UKUPNA POVRŠINA 72,54 m2 71,42 m2

TLOCRT - POZICIJA

Pozicija stana na etaži

Lokacija

vrh stranice