Trosoban stan Ozaljska - A606

  • RASPOLOŽIVO
Oznaka Stan A606
Prodaja/najam Za prodaju
Vrsta Novogradnja
Tip Stan
Sobnost 3-soban
Orijentacija Sjeveroistok
Etaža 6.kat
Grijanje Plinsko etažno
Energetski razred A+
Godina izgradnje 2027
Faza U izgradnji
Županija Grad Zagreb
Grad Zagreb
Naselje Trešnjevka Nova
Površina 73,02 m2
Cijena po m² 6.000,00 EUR/m²
Ukupna cijena 438.120,00 EUR

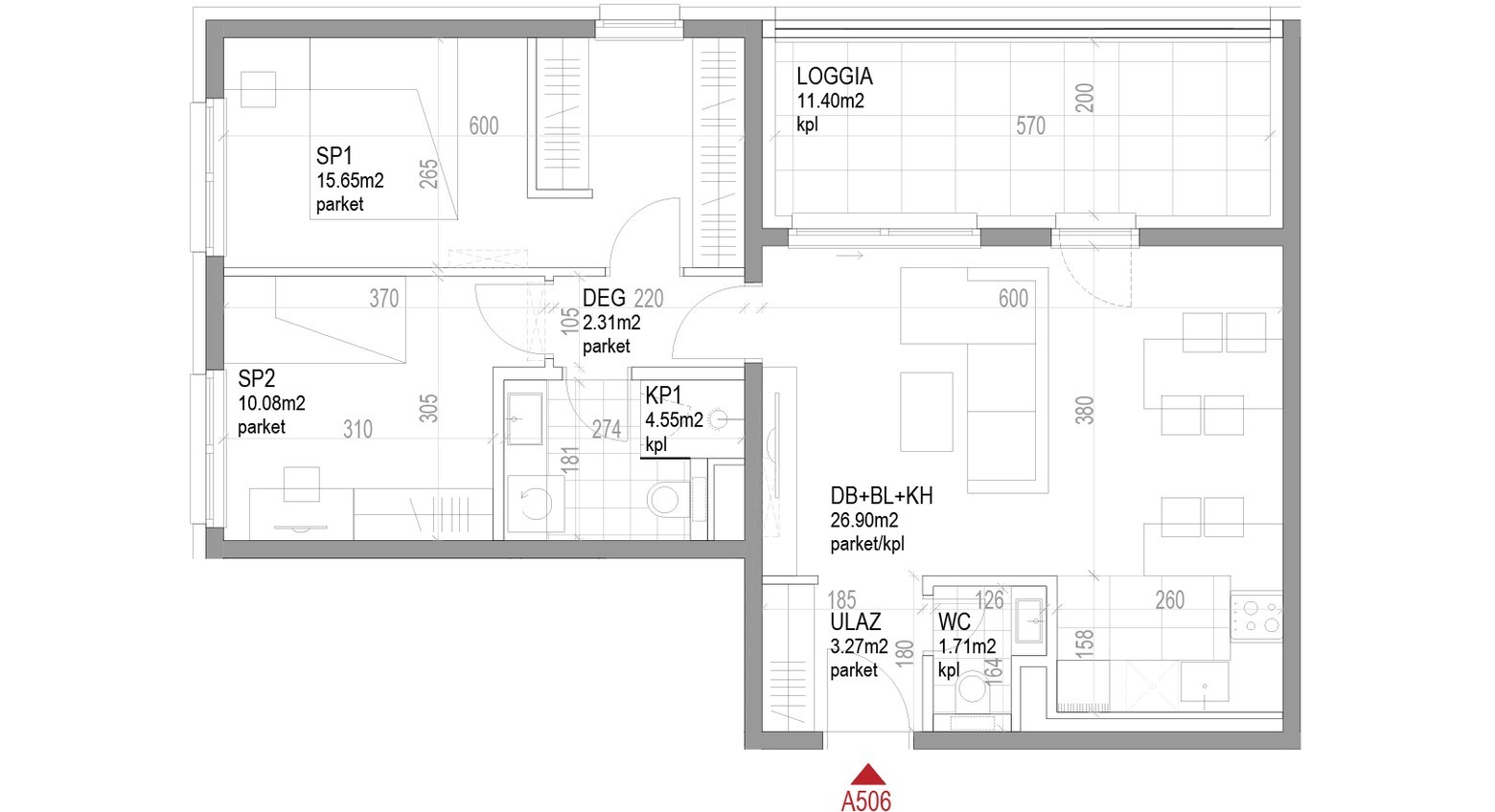
Iskaz neto površine stana

Oznaka  Naziv prostora  Površina  Prodajna površina 
01 Ulaz 3,27 3,27
02 Blag+DB+kuhinja 26,90 26,90
03 Spavaća soba 1 15,65 15,65
04 Spavaća soba 2 10,08 10,08
05 Kupaonica 4,55 4,55
06 WC 1,71 1,71
 07 Degažman 2,31 2,31
  ZATVORENI PROSTOR 64,47 m2 64,47 m2
 08 Loggia 11,40 8,55
  OTVORENI PROSTOR 11,40 m2 8,55 m2 
  UKUPNA POVRŠINA 75,87 m2 73,02 m2

TLOCRT - POZICIJA

Pozicija stana na etaži

Lokacija

vrh stranice